Dit handelspand is gelegen recht tegenover het station van Deinze, waar gemiddeld een 1.500 pendelaars dagelijks vertrekken en/of aankomen.
Het pand deed vroeger dienst als het café 't Center, ook wel gekend als Het Centerken. In 2010 werd het gebouw volledig herbouwd met de hedendaagse bouwnormen in acht, hierdoor geniet het pand van een gunstig EPC, namelijk een A-label.

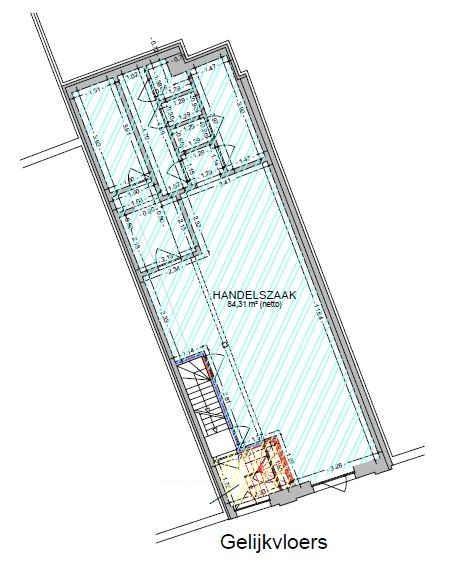
Indeling van het pand:

Handelsruimte met open ruimte en volwaardige toog met tapinstallatie, diverse frigo's, muziekinstallatie met surround sound systeem.
Geïnstalleerde keuken met vaatwasmachine en aansluitende technische ruimte met berging.
Ruim sanitair blok met splitsing voor mannen en vrouwen en diverse toiletten.
Gemakkelijk te bereiken kelder, perfect als bijkomende opslagruimte.

In de onmiddellijke omgeving zijn er tal van parkeermogelijkheden, hetzij vlak voor de deur of de talloze parkeervoorzieningen om en rond het station.

Enkele troeven:

  • Commerciële topligging
  • Centraal gelegen
  • Talloze nijverheidsmogelijkheden (café, horeca, kantoor, ...)
  • Energiezuinig (A-label)


Wenst u graag een bezoek? Aarzel niet en neem gerust contact op met ons!
(vermelde prijs is een richtprijs en geen vraagprijs)

Te koop

Handelspand op commerciële topligging, centrum Deinze

€149.000

Vlaemynck map icon

Statieplein 31,
9800 Deinze

Toon op kaart
Vlaemynck home icon

Winkel

Grondopp. 108 m²

A

Interesse in dit pand?

Matthias Viaene
tielt@vlaemynck.be
051 40 40 10

Matthias

Dit handelspand is gelegen recht tegenover het station van Deinze, waar gemiddeld een 1.500 pendelaars dagelijks vertrekken en/of aankomen.
Het pand deed vroeger dienst als het café 't Center, ook wel gekend als Het Centerken. In 2010 werd het gebouw volledig herbouwd met de hedendaagse bouwnormen in acht, hierdoor geniet het pand van een gunstig EPC, namelijk een A-label.

Indeling van het pand:

Handelsruimte met open ruimte en volwaardige toog met tapinstallatie, diverse frigo's, muziekinstallatie met surround sound systeem.
Geïnstalleerde keuken met vaatwasmachine en aansluitende technische ruimte met berging.
Ruim sanitair blok met splitsing voor mannen en vrouwen en diverse toiletten.
Gemakkelijk te bereiken kelder, perfect als bijkomende opslagruimte.

In de onmiddellijke omgeving zijn er tal van parkeermogelijkheden, hetzij vlak voor de deur of de talloze parkeervoorzieningen om en rond het station.

Enkele troeven:

  • Commerciële topligging
  • Centraal gelegen
  • Talloze nijverheidsmogelijkheden (café, horeca, kantoor, ...)
  • Energiezuinig (A-label)


Wenst u graag een bezoek? Aarzel niet en neem gerust contact op met ons!
(vermelde prijs is een richtprijs en geen vraagprijs)

Algemeen

Sortering Winkel
Algemene staat Te vernieuwen
Karakteristiek Gesloten winkel
Type eigendom Verkoop
Straat + nr Statieplein 31
Gemeente + postcode 9800 Deinze
Renovatiejaar 2010

Financieel & Oppervlakte

Prijs €149.000
Grondoppervlakte 108 m²

Indeling & Voorzieningen

Parkeerplaats Nee
Garage Nee

Energie & Technisch

EPC certificaat 20230316-0002839058-KNR-1
Energielabel

A

Renovatieplichting Neen

Juridisch

Stedenbouwkundige vergunning Ja
Stedenbouwkundige bestemming Woongebied
Dagvaarding herstel Nee
Voorkooprecht Nee
Verkavelingsvergunning Nee
Overstromingsgevoelig Nee
Overstromingsgebied Nee
P-score A
G-score A
Beschermd erfgoed Nee
print Afdrukken
Wat onze klanten zeggen
vastgoed verkopen nieuwpoort

Onze woning werd meteen verkocht

Vlaemynck
starstarstarstarstar

Via een lanceermoment op een zaterdag kregen we een acht-tal kandidaat-kopers over de vloer. Onze woning werd meteen verkocht de maandag die hierop volgde. Efficiënt!

vastgoed verkopen nieuwpoort

Onze woning werd meteen verkocht

Vlaemynck
starstarstarstarstar

Via een lanceermoment op een zaterdag kregen we een acht-tal kandidaat-kopers over de vloer. Onze woning werd meteen verkocht de maandag die hierop volgde. Efficiënt!

Vastgoed verkopen tielt

Ik ben heel tevreden over mijn makelaar Thibeau.

Bavikhove
starstarstarstarstar

Ik ben heel tevreden over mijn makelaar Thibeau. Hij heeft ons huis verkocht boven de vraagprijs die werd bepaald via een schatting. We hebben veel meer gekregen dan oorspronkelijk vooropgesteld was.

Vastgoed verkopen tielt

Ik ben heel tevreden over mijn makelaar Thibeau.

Bavikhove
starstarstarstarstar

Ik ben heel tevreden over mijn makelaar Thibeau. Hij heeft ons huis verkocht boven de vraagprijs die werd bepaald via een schatting. We hebben veel meer gekregen dan oorspronkelijk vooropgesteld was.

Vastgoed Sint-Idesbald

Aangename en efficiënte samenwerking!

Sint-Idesbald
starstarstarstarstar

De samenwerking met Vlaemynck Vastgoed via Jhonny Vandenbussche voor de verkoop van ons appartement, in Sint-Idesbald, verliep uitstekend, zowel wat de snelheid als de afhandeling van ons dossier betreft.
De vriendelijke samenwerking was zeer aangenaam en vooral zeer efficiënt.

Willy Cools

Vastgoed Sint-Idesbald

Aangename en efficiënte samenwerking!

Sint-Idesbald
starstarstarstarstar

De samenwerking met Vlaemynck Vastgoed via Jhonny Vandenbussche voor de verkoop van ons appartement, in Sint-Idesbald, verliep uitstekend, zowel wat de snelheid als de afhandeling van ons dossier betreft.
De vriendelijke samenwerking was zeer aangenaam en vooral zeer efficiënt.

Willy Cools

Vastgoed kust

Heel behulpzaam, heel vriendelijk.

Nieuwpoort
starstarstarstarstar

De gelijktijdige aankoop van ons huis en de verkoop van ons appartement was een zeer positieve ervaring dankzij de professionaliteit en competentie van Arthur. Bedankt Arthur voor je altijd warme welkom, je onbeperkte beschikbaarheid, je geduld om al onze vragen te beantwoorden, je snelheid van uitvoering, je ervaring om ons te adviseren en je voorbeeldige efficiëntie.
Wat een geweldig team en dienst ! We raden ze ten zeerste aan.

Nadia Luypaert

Vastgoed kust

Heel behulpzaam, heel vriendelijk.

Nieuwpoort
starstarstarstarstar

De gelijktijdige aankoop van ons huis en de verkoop van ons appartement was een zeer positieve ervaring dankzij de professionaliteit en competentie van Arthur. Bedankt Arthur voor je altijd warme welkom, je onbeperkte beschikbaarheid, je geduld om al onze vragen te beantwoorden, je snelheid van uitvoering, je ervaring om ons te adviseren en je voorbeeldige efficiëntie.
Wat een geweldig team en dienst ! We raden ze ten zeerste aan.

Nadia Luypaert

Vastgoed Tielt

Niets dan positieve ervaringen!

Tielt
starstarstarstarstar

Niets dan positieve ervaringen!
Nadat een andere makelaar faalde, zorgde Matthias Viaene bij Vlaemynck Vastgoed ervoor dat ons pand binnen de paar maanden verkocht kon worden. En dit ook nog eens aan de perfecte kopers en lieve nieuwe bewoners. Professioneel, correct, inventief, hartelijk, ik kan het lijstje aan blijven vullen.

Keep up the good work!
Dokter Veronique

Vastgoed Tielt

Niets dan positieve ervaringen!

Tielt
starstarstarstarstar

Niets dan positieve ervaringen!
Nadat een andere makelaar faalde, zorgde Matthias Viaene bij Vlaemynck Vastgoed ervoor dat ons pand binnen de paar maanden verkocht kon worden. En dit ook nog eens aan de perfecte kopers en lieve nieuwe bewoners. Professioneel, correct, inventief, hartelijk, ik kan het lijstje aan blijven vullen.

Keep up the good work!
Dokter Veronique

Makelaar Tielt

Zeker aan te raden !

Tielt
starstarstarstarstar

Wij hebben een KMO Unit gehuurd via makelaar Vlaemynck in Tielt, onze contactpersoon is Marcus Delaere. Niets dan lof voor deze persoon: heel gedienstig, goede en vlotte service, vlug antwoord op vragen, goede follow up van het dossier, respect voor de klant. Ook het overige personeel staat altijd klaar om te helpen. Zeker aan te raden!

Olivier De Schrijver

Makelaar Tielt

Zeker aan te raden !

Tielt
starstarstarstarstar

Wij hebben een KMO Unit gehuurd via makelaar Vlaemynck in Tielt, onze contactpersoon is Marcus Delaere. Niets dan lof voor deze persoon: heel gedienstig, goede en vlotte service, vlug antwoord op vragen, goede follow up van het dossier, respect voor de klant. Ook het overige personeel staat altijd klaar om te helpen. Zeker aan te raden!

Olivier De Schrijver

Kantoren

Vlaemynck Tielt

Sint-Janstraat 185

8700 Tielt
 

051 40 40 10

tielt@vlaemynck.be 

Meer over Vlaemynck Tielt

Vlaemynck Nieuwpoort

R. Orlentpromenade 13 bus 00.01
8620 Nieuwpoort

058 77 77 10

nieuwpoort@vlaemynck.be 

Meer over Vlaemynck Nieuwpoort

Vlaemynck Veurne

Zuidstraat 74
8630 Veurne

058 62 27 50

veurne@vlaemynck.be 

Meer over Vlaemynck Veurne

Vlaemynck Sint-Idesbald

Strandlaan 316
8670 Sint-Idesbald

058 62 27 51

sintidesbald@vlaemynck.be 

Meer over Vlaemynck Sint-Idesbald

Vlaemynck Harelbeke

Bavikhoofsestraat 87
8531 Harelbeke

056 98 05 55

harelbeke@vlaemynck.be 

Meer over Vlaemynck Harelbeke

Vlaemynck Waregem

Keukeldam 31
8790 Waregem

056 19 99 97

waregem@vlaemynck.be 

Meer over Vlaemynck Waregem

Vlaemynck Zwevegem (Resida)

Vierkeerstraat 2 bus 2
8551 Zwevegem

056 98 05 55

info@resida.be 

Vlaemynck Roeselare (West-Buro)

Koning Albert I Laan 80 bus 1
8800 Roeselare

051 20 49 98